Serbian
▼
X
English
German
Italian
Serbian
Pozovite
Naslovna
Projekti
Reference
Galerija
O Nama
Blog
Kontakt
NORWEG HOUSE
Naslovna
Projekti
NORWEG HOUSE
Arhitekta: Zoran Mojsilović
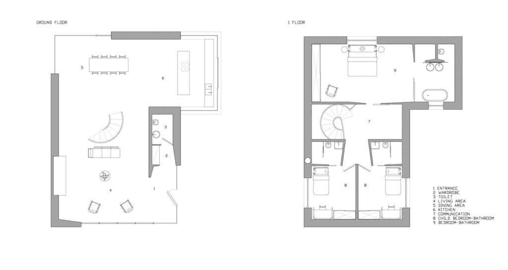
Raspored prostorija:
Prostorni plan:
Opis projekta:
Pošaljite upit
Fill out this field
Молимо вас да унесете ваљану адресу е-поште.
Fill out this field
Fill out this field
Pošalji
Kontaktirajte nas
WhatsApp
Viber
Telefon
Изборник