Arhitekta: Zoran Mojsilović

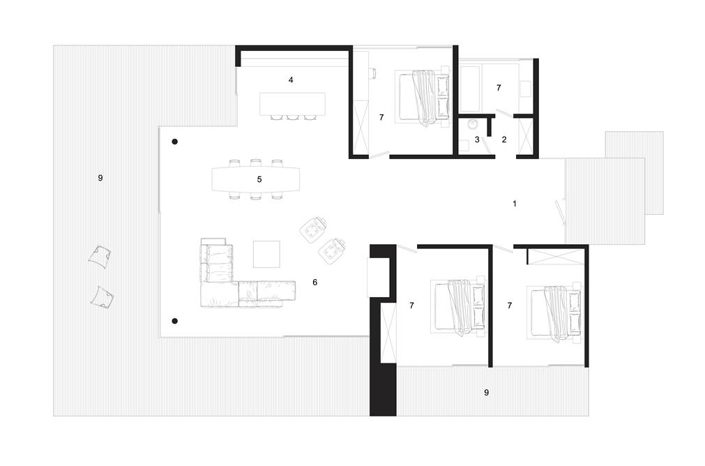
Raspored prostorija:

1. Ulaz
2. Garderober
3. Toalet
4. Kuhinja
5. Trpezarija
6. Dnevna soba
7. Spavaća soba
8. Kupatilo
9. Terasa

Prostorni plan:
Opis projekta:
po funkciji prostorija zadovoljava potrebe četvoročlane porodice. Sastoji od tri spavaće sobe, kupatila, garderobera, dnevnog boravka koji je spojen sa trpezarijom i kuhinjom. Preko balkonskih vrata dnveni boravak je povezan sa ulaznom terasom koja je na strani spavaćeg dela. Široki hodnik jasno razdvaja dve celine i ostvaruje međusobnu komunikaciju.

Kontaktirajte nas

WhatsApp
Viber
Telefon