Arhitekta: Zoran Mojsilović

Arhitekta: Zoran Mojsilović



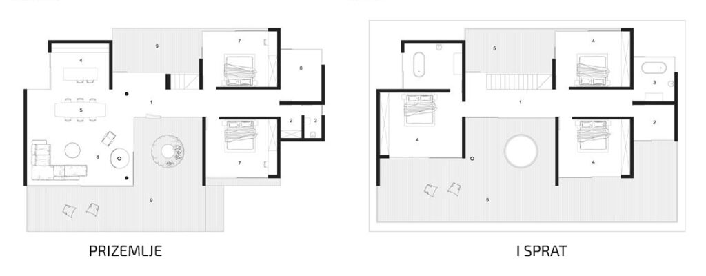
PRIZEMLJE:
1. Ulaz
2. Garderober
3. Kupatilo
4. Kuhinja
5. Trpezarija
6. Dnevna soba
7. Spavaća soba
8. Soba
9. Terasa
I SPRAT:
1. Hodnik
2. Soba
3. Kupatilo
4. Spavaća soba
5. Terasa
